1) Нове будівництво багатоквартирних житлових будинків з об’єктами торгово-розважального призначення та ринкової інфраструктури в с.Липини Луцького району, Волинської області (І черга)»
Ідентифікатор об’єкта будівництва: 01.2540439.5074697.20240221.13.0000.51
Адреса: Волинська область, Луцький район, с.Липини, вул. Володимира Князя, 22-А, корпус 1
Клас наслідків СС3
Розташування та генеральний план населеного пункту:

2) основні технічні характеристики подільного об’єкта незавершеного будівництва згідно з переліком, визначеним Кабінетом Міністрів України, але в обсязі не меншому, ніж зазначено в Єдиній державній електронній системі у сфері будівництва (додаток 1 до постанови КМУ від 21.04.23р. №378
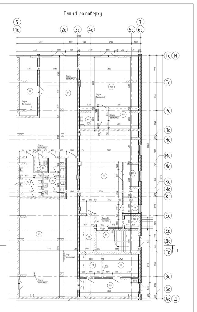
Поверховість: 9
Умовна висота об’єкта: 26,5 м
Тип та матеріал фундаментів: плитні із монолітної з/б плити
Конструкція та матеріал зовнішніх стіні: каркасна, монолітна
Матеріал та технологія зведення каркасу (зазначається для об’єктів з каркасною конструктивною системою)
Внутрішні та зовнішні стіни (стінове заповнення монолітного каркасу) будинку з керамічних блоків, утеплені мінераловатними плитами товщиною 150мм, перегородки – з червоної рядової повнотілої цегли
Клас енергетичної ефективності об’єкта (у випадках, передбачених Законом України “Про енергетичну ефективність будівель”) С
Тип опалення: автономне
Тип і джерело водопостачання: існуюча внутрішньо квартальна водопровідна мережа
Тип і спосіб відведення стоків: існуюча внутрішньо квартальна каналізаційна мережа
Тип вентиляції: природня та припливно-витяжна
Висота приміщень (від підлоги до стелі): 2.7 м
Кількість квартир: 61
Ліфти та піднімальні пристрої: наявні
Наявність закритої прибудинкової території, інформація про об’єкти благоустрою: загороджена територія житлового кварталу, покриття території бруківкою, влаштування газону з багаторічних трав
Забезпеченість доступності прибудинкової території об’єкта для маломобільних груп: забезпечено
Наявність та тип паркінгу, кількість паркомісць: відкриті автостоянки, 20 паркомісць
Інформація про наявність захисних споруд цивільного захисту, в тому числі споруд подвійного призначення: Укриття передбачено в ІІІ черзі будівництва. Для І та ІІ черги будівництва до моменту здачі в експлуатацію ІІІ черги укриття буде передбачено в першій секції житлового комплексу «Перший квартал» , що зведено на даній ділянці (кадастровий номер 0722883400:01:002:2779) на відстані 40 метрів від запроектованої будівлі.
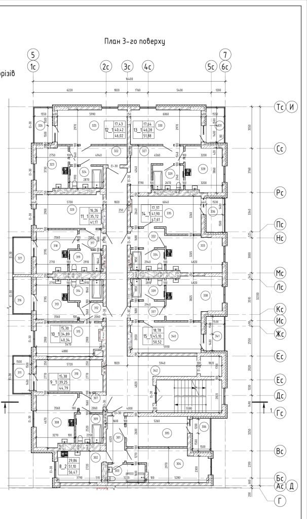
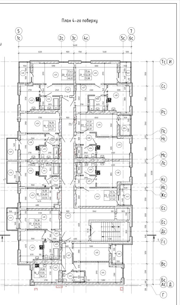
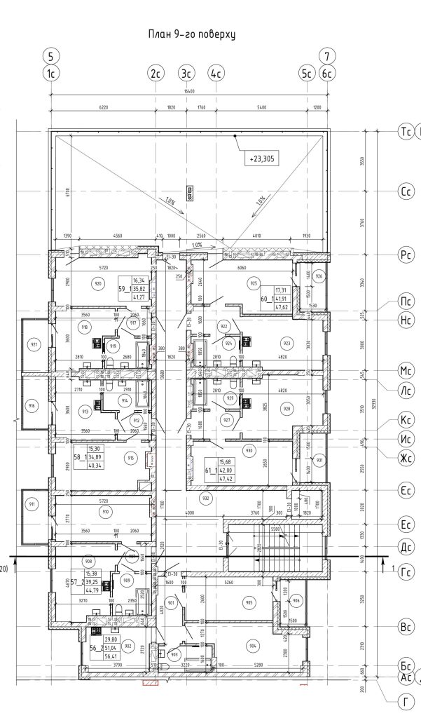
Плани поверхів
3) відомості про замовника будівництва, девелопера будівництва (за наявності), управителя фонду фінансування будівництва (за наявності):
Замовник будівництва: Товариство з обмеженою відповідальністю «ЛАНІНВЕСТ-СЕРВІС»
(ТзОВ «ЛАНІНВЕСТ-СЕРВІС»)
Код ЄДПРОУ: 35981430
Організаційно-правова форма: Товариство з обмеженою відповідальністю
Директор: Данкін Олександр Олександрович
Кінцевий бенефіціарний власник: Валієв Сергій Робертович (100%)
Місцезнаходження юридичної особи: 43005, Україна, Волинська область, місто Луцьк, проспект Президента Грушевського, будинок, 30
інформація для здійснення зв’язку з юридичною особою: телефон, адреса електронної пошти;
Телефон:+38 067 332 09 11
Електронна пошта: orenda.atlanta@gmail.com
дані про перебування юридичної особи у процесі припинення;
Товариство з обмеженою відповідальністю «ЛАНІНВЕСТ-СЕРВІС» не перебуває у процесі припинення
дані про перебування юридичної особи у процесі провадження у справі про банкрутство, санації, у тому числі відомості про розпорядника майна, керуючого санацією, ліквідатора;
Товариство з обмеженою відповідальністю «ЛАНІНВЕСТ-СЕРВІС» не перебуває у процесі провадження у справі про банкрутство
Девелопер будівництва: Товариство з обмеженою відповідальністю «ІНСОЛЯЦІЯ»
(ТОВ «ІНСОЛЯЦІЯ»)
Код ЄДПРОУ: 44576020
Організаційно-правова форма: Товариство з обмеженою відповідальністю
Директор: Зозуля Ірина Анатоліївна
Кінцевий бенефіціарний власник: Бохонко Сергій Анатолійович (29,69%), Зозуля Ірина Анатоліївна (36,83%), Бохонко Наталія Леонідівна (33,48%).
Місцезнаходження юридичної особи: 45601, Україна, Волинська область, Луцький район, с.Липини, вул.Франка І., будинок 8
інформація для здійснення зв’язку з юридичною особою: телефон, адреса електронної пошти;
Телефон:+38 050 599 46 38
Електронна пошта: insolation94@gmail.com
дані про перебування юридичної особи у процесі припинення;
Товариство з обмеженою відповідальністю «ІНСОЛЯЦІЯ» не перебуває у процесі припинення
дані про перебування юридичної особи у процесі провадження у справі про банкрутство, санації, у тому числі відомості про розпорядника майна, керуючого санацією, ліквідатора;
Товариство з обмеженою відповідальністю «ІНСОЛЯЦІЯ» не перебуває у процесі провадження у справі про банкрутство
4) відомості про генерального підрядника або підрядника (якщо будівельні роботи виконуються без залучення субпідрядників), передбачені пунктом 3 цієї частини;
Генеральний підрядник: Приватне підприємство «ЕФЕКТ»
Код ЄДПРОУ: код ЄДПРОУ 30887436
Організаційно-правова форма: Приватне підприємство
Директор: Бохонко Сергій Анатолійович
Кінцевий бенефіціарний власник: Бохонко Сергій Анатолійович (100 %)
Місцезнаходження юридичної особи: 43026, Україна, Волинська область, м.Луцьк, вул.Кравчука, будинок 17
інформація для здійснення зв’язку з юридичною особою: телефон, адреса електронної пошти;
Телефон:+38 093 399 86 31
Електронна пошта: efekt.lutsk@gmail.com
дані про перебування юридичної особи у процесі припинення;
Приватне підприємство «ЕФЕКТ» не перебуває у процесі припинення
дані про перебування юридичної особи у процесі провадження у справі про банкрутство, санації, у тому числі відомості про розпорядника майна, керуючого санацією, ліквідатора;
Приватне підприємство «ЕФЕКТ» не перебуває у процесі провадження у справі про банкрутство
5) запланований квартал, рік прийняття в експлуатацію закінченого будівництвом об’єкта;
Заплановане прийняття в експлуатацію закінченого будівництвом об’єкта: третій квартал 2025 року
6) відомості про право на виконання будівельних робіт з посиланням на відповідні відомості та документи в Єдиній державній електронній системі у сфері будівництва;
Дозвільний документ реєстраційний номер в ЄДЕССБ:ІУ013240329449
https://e-construction.gov.ua/document_detail/doc_id=3334454590736172586/optype=100
7) відомості про хід будівництва (щомісячні фотографії об’єкта, графік виконання робіт та стан його виконання);
Графік виконання робіт

Земляні роботи: розробка котловану, доробка ґрунту вручну, ущільнення ґрунту.
Фундамент: улаштування основи під фундаменти щебеневої, бетонної підготовки, улаштування фундаментних плит залізобетонних.
Вертикальні конструкції підвалу: улаштування монолітних стін, улаштування залізобетонних колон.
Перекриття підвалу: улаштування монолітних плит перекриття.
Вертикальні конструкції першого-третього поверхів: улаштування залізобетонних колон і пілонів.
Перекриття першого-третього поверхів: улаштування монолітних плит перекриття.
Сходи: улаштування монолітних сходів виконано до третього поверху.
- Приступаємо до улаштування монолітних плит перекриття четвертого поверху та мурування стін другого поверху.
- Влаштовано залізобетонні вертикальні конструкції (колони та пілони) дев’ятого поверху.
- Влаштовано монолітну плиту перекриття дев’ятого поверху.
- Виготовляється каркас монолітних сходів дев’ятого поверху.
- Виготовляється каркас вертикальних конструкцій для дахової котельні.
- Виконується кладка зовнішніх стін сьомого поверху.
- Виконується кладка внутрішніх міжквартирних стін шостого поверху.
- Влаштовуються перегородки п’ятого поверху.
- Зроблена електропроводка другого та третього поверху.
8) відомості про майбутні об’єкти нерухомості, які продано та які продаються, перелік яких визначається Кабінетом Міністрів України; (додаток 4 до постанови КМУ від 21.04.23р. №378)
Корпус 1
Номер МОН | Поверх розташування МОН | Ідентифікатор | Загальна площа, м2 | Житлова площа, м2 | К-сть кімнат | Відомості про факт відчуження |
1 | 2-й | 01.2540439.5074697.20240221.13.2455.19 | 56.52 | 29.86 | 2 | гарантійна частка |
2 | 2-й | 01.2540439.5074697.20240221.13.1833.45 | 55.82 | 27,31 | 2 | гарантійна частка |
3 | 2-й | 01.2540439.5074697.20240221.13.0699.21 | 35.72 | 16.26 | 1 | |
4 | 2-й | 01.2540439.5074697.20240221.13.0957.04 | 46.02 | 17.43 | 1 | |
5 | 2-й | 01.2540439.5074697.20240221.13.2607.57 | 51.88 | 17.64 | 1 | |
6 | 2-й | 01.2540439.5074697.20240221.13.4257.65 | 47.62 | 17.31 | 1 | |
7 | 2-й | 01.2540439.5074697.20240221.13.5907.94 | 47.52 | 15.47 | 1 | |
8 | 3-й | 01.2540439.5074697.20240221.13.3125.10 | 56.47 | 29.86 | 2 | гарантійна частка |
9 | 3-й | 01.2540439.5074697.20240221.13.0343.02 | 44.79 | 15.38 | 1 | |
10 | 3-й | 01.2540439.5074697.20240221.13.8953.80 | 40.34 | 15.3 | 1 | |
11 | 3-й | 01.2540439.5074697.20240221.13.7563.42 | 41.17 | 16.26 | 1 | |
12 | 3-й | 01.2540439.5074697.20240221.13.4781.34 | 46.02 | 17.43 | 1 | |
13 | 3-й | 01.2540439.5074697.20240221.13.3391.96 | 51.88 | 17.64 | 1 | |
14 | 3-й | 01.2540439.5074697.20240221.13.2001.03 | 47.61 | 17.37 | 1 | |
15 | 3-й | 01.2540439.5074697.20240221.13.0611.41 | 50.52 | 18.78 | 1 | |
16 | 4-й | 01.2540439.5074697.20240221.13.9221.43 | 56.41 | 29.8 | 2 | |
17 | 4-й | 01.2540439.5074697.20240221.13.6439.19 | 44.79 | 15.38 | 1 | |
18 | 4-й | 01.2540439.5074697.20240221.13.3657.11 | 40.34 | 15.3 | 1 | |
19 | 4-й | 01.2540439.5074697.20240221.13.2267.73 | 41.17 | 16.26 | 1 | |
20 | 4-й | 01.2540439.5074697.20240221.13.9486.09 | 46.02 | 17.43 | 1 | |
21 | 4-й | 01.2540439.5074697.20240221.13.6704.46 | 51.88 | 17.64 | 1 | |
22 | 4-й | 01.2540439.5074697.20240221.13.5314.08 | 47.61 | 17.37 | 1 | |
23 | 4-й | 01.2540439.5074697.20240221.13.3924.46 | 47.42 | 15.74 | 1 | |
24 | 5-й | 01.2540439.5074697.20240221.13.1142.62 | 56.41 | 29.8 | 2 | |
25 | 5-й | 01.2540439.5074697.20240221.13.9752.40 | 44.79 | 15.38 | 1 | |
26 | 5-й | 01.2540439.5074697.20240221.13.8362.02 | 40.34 | 15.3 | 1 | |
27 | 5-й | 01.2540439.5074697.20240221.13.5580.94 | 41.19 | 16.26 | 1 | |
28 | 5-й | 01.2540439.5074697.20240221.13.2798.70 | 46.02 | 17.43 | 1 | |
29 | 5-й | 01.2540439.5074697.20240221.13.0016.31 | 51.88 | 17.64 | 1 | |
30 | 5-й | 01.2540439.5074697.20240221.13.7234.63 | 47.61 | 17.37 | 1 | |
31 | 5-й | 01.2540439.5074697.20240221.13.4452.55 | 47.42 | 15.68 | 1 | |
32 | 6-й | 01.2540439.5074697.20240221.13.3062.17 | 56.41 | 29.8 | 2 | |
33 | 6-й | 01.2540439.5074697.20240221.13.0280.09 | 44.79 | 15.38 | 1 | |
34 | 6-й | 01.2540439.5074697.20240221.13.8890.87 | 40.34 | 15.3 | 1 | |
35 | 6-й | 01.2540439.5074697.20240221.13.7500.94 | 41.19 | 16.26 | 1 | |
36 | 6-й | 01.2540439.5074697.20240221.13.6110.56 | 46.02 | 17.43 | 1 | |
37 | 6-й | 01.2540439.5074697.20240221.13.4720.94 | 51.88 | 17.64 | 1 | |
38 | 6-й | 01.2540439.5074697.20240221.13.3330.56 | 47.62 | 17.31 | 1 | |
39 | 6-й | 01.2540439.5074697.20240221.13.0548.32 | 47.42 | 15.68 | 1 | |
40 | 7-й | 01.2540439.5074697.20240221.13.9158.34 | 56.41 | 29.8 | 2 | |
41 | 7-й | 01.2540439.5074697.20240221.13.6376.26 | 44.79 | 15.38 | 1 | |
42 | 7-й | 01.2540439.5074697.20240221.13.6378.34 | 40.34 | 15.3 | 1 | |
43 | 7-й | 01.2540439.5074697.20240221.13.2205.29 | 41.19 | 16.26 | 1 | |
44 | 7-й | 01.2540439.5074697.20240221.13.6639.29 | 46.02 | 17.43 | 1 | |
45 | 7-й | 01.2540439.5074697.20240221.13.5250.11 | 51.88 | 17.64 | 1 | |
46 | 7-й | 01.2540439.5074697.20240221.13.2468.87 | 47.62 | 17.31 | 1 | |
47 | 7-й | 01.2540439.5074697.20240221.13.9686.19 | 47.42 | 15.68 | 1 | |
48 | 8-й | 01.2540439.5074697.20240221.13.6904.56 | 56.41 | 29.8 | 2 | |
49 | 8-й | 01.2540439.5074697.20240221.13.4122.72 | 44.79 | 15.38 | 1 | |
50 | 8-й | 01.2540439.5074697.20240221.13.1340.64 | 40.34 | 15.3 | 1 | |
51 | 8-й | 01.2540439.5074697.20240221.13.9950.42 | 41.19 | 16.26 | 1 | |
52 | 8-й | 01.2540439.5074697.20240221.13.5776.72 | 46.02 | 17.43 | 1 | |
53 | 8-й | 01.2540439.5074697.20240221.13.4386.34 | 51.88 | 17.64 | 1 | |
54 | 8-й | 01.2540439.5074697.20240221.13.2996.72 | 47.62 | 17.31 | 1 | |
55 | 8-й | 01.2540439.5074697.20240221.13.0214.33 | 47.42 | 15.68 | 1 | |
56 | 9-й | 01.2540439.5074697.20240221.13.6040.19 | 56.41 | 29.8 | 2 | гарантійна частка |
57 | 9-й | 01.2540439.5074697.20240221.13.3258.95 | 44.79 | 15.38 | 1 | |
58 | 9-й | 01.2540439.5074697.20240221.13.0476.87 | 40.34 | 15.3 | 1 | |
59 | 9-й | 01.2540439.5074697.20240221.13.7694.19 | 41.27 | 16.34 | 1 | |
60 | 9-й | 01.2540439.5074697.20240221.13.6304.26 | 47.62 | 17.31 | 1 | |
61 | 9-й | 01.2540439.5074697.20240221.13.3522.18 | 47.42 | 15.68 | 1 | |
102 | 1-й | 01.2540439.5074697.20240221.13.2966.04 | 18.63 | – | – | |
103/104/105 | 1-й | 01.2540439.5074697.20240221.13.6264.57 | 72.5 | – | – | |
109 | 1-й | 01.2540439.5074697.20240221.13.5130.94 | 108.02 | – | – |
9) умови придбання та ціна майбутніх об’єктів нерухомості або спосіб її визначення;
Умови придбання та ціна майбутніх об’єктів нерухомості визначаються девелопером будівництва залежно від вартості будівельних матеріалів і робіт на день укладення договору купівлі-продажу.
10) проект договору купівлі-продажу майбутнього об’єкта нерухомості








